Trang chủ / Nhà đất cho thuê / Cho thuê kho, xưởng

Cho thuê nhà xưởng KCN Mỹ Phước, Bến Cát, Bình Dương 2.022m²

Cho thuê nhà xưởng – KCN Mỹ Phước, Bến Cát, Bình Dương – 2.022m²
Thông tin chi tiết
Vị trí: Khu Công Nghiệp Mỹ Phước, Bến Cát, Tỉnh Bình Dương
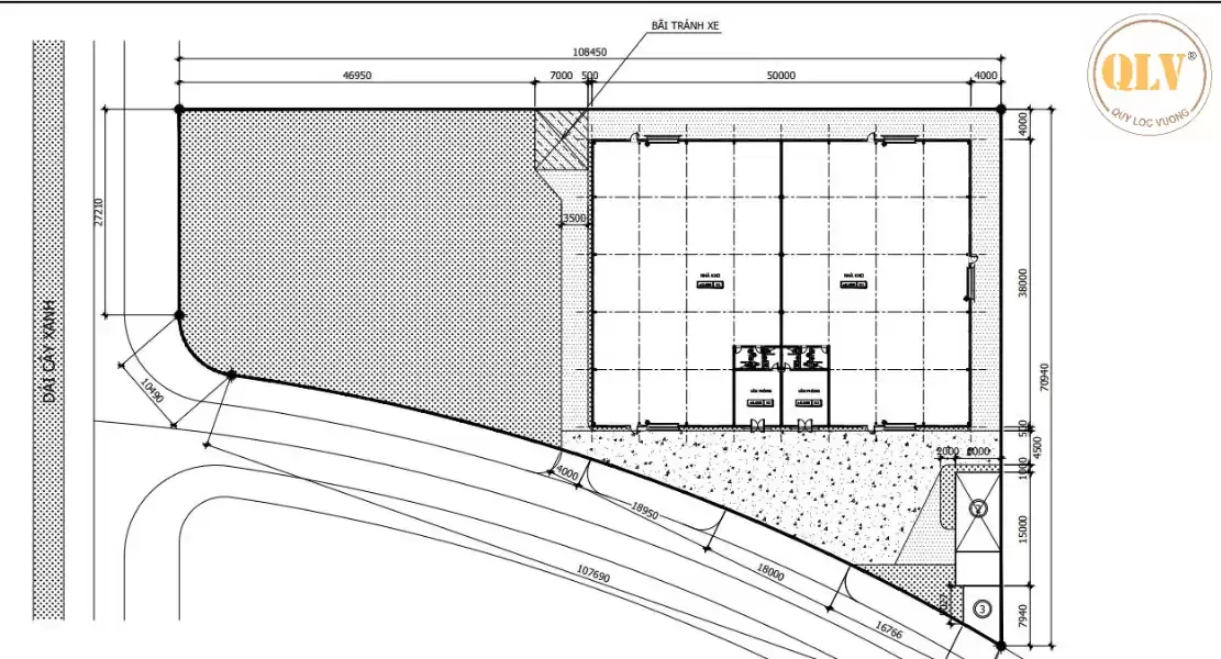
Tổng diện tích khuôn viên: 5.228m²
Diện tích xây dựng: 2.022m²
Trong đó
Nhà xưởng: 1.900m² (38m x 50m)
Văn phòng: 50m²
Công trình phụ trợ đầy đủ
Hạ tầng điện nước hoàn chỉnh
Nằm trong KCN, xe container ra vào thuận tiện
Đường nội khu rộng, phù hợp sản xuất – kho bãi
Tiện ích & đặc điểm
Xưởng phù hợp làm kho hoặc nhiều ngành nghề sản xuất
Kết cấu xưởng kiên cố, thông thoáng
Hệ thống PCCC theo tiêu chuẩn
Vị trí đẹp trong KCN, kết nối giao thông thuận lợi
Liên hệ
CÔNG TY TNHH MTV QUÝ LỘC VƯỢNG
Hotline: 0931 769 444
Website: https://nhaxuongchinhchu.vn
 bến cát, bình dương
Giá: 98.000
Diện tích: 2022 m2

Cho thuê nhà xưởng KCN Mỹ Phước, Bến Cát, Bình Dương 2.022m²
Cho thuê nhà xưởng KCN Mỹ Phước, Bến Cát, Bình Dương 2.022m²
Cho thuê nhà xưởng KCN Mỹ Phước, Bến Cát, Bình Dương 2.022m²
Cho thuê nhà xưởng KCN Mỹ Phước, Bến Cát, Bình Dương 2.022m²
Cho thuê nhà xưởng KCN Mỹ Phước, Bến Cát, Bình Dương 2.022m²
Cho thuê nhà xưởng KCN Mỹ Phước, Bến Cát, Bình Dương 2.022m²
Cho thuê nhà xưởng KCN Mỹ Phước, Bến Cát, Bình Dương 2.022m²
Cho thuê nhà xưởng KCN Mỹ Phước, Bến Cát, Bình Dương 2.022m²
Các thông tin khác
Mã tin:
109982
Hướng:
-
Đường rộng:
0m
Chiều ngang:
0m
Chiều dài:
0m
Pháp lý:
Sổ hồng/sổ đỏ
Số tầng:
0
Phòng ngủ:
0
Số wc:
0
Lưu ý:
Các bạn đang xem tin đăng trong mục "Nhà đất cho thuê, Cho thuê kho, xưởng Bến Cát, Bình Dương". Các tin rao vặt là do người đăng tin đăng tải toàn bộ thông tin. Chúng tôi hoàn toàn không chịu trách nhiệm về bất cứ thông tin nào liên quan tới các thông tin này. Chúng tôi luôn cố gắng để đưa các tin tức nhanh và chính xác nhất cho các bạn.
Saotho.net

Mua bán nhà đất

KĐT Tài Tâm - Thanh Châu - Phủ Lý - Hà Nam

Bất Động Sản Việt cung cấp thông tin bất động sản, nhà đất cần bán, cần mua, thông tin các dự án mới nhất. Hỗ trợ tư vấn miễn phí bất động sản tận tâm chính xác.
Chúng tôi luôn mong muốn được hợp tác cùng phát triển với các tổ chức và cá nhân trong lĩnh vực Bất Động Sản trên toàn quốc để cùng hoạt động và tạo doanh thu.

DMCA.com Protection Status Protected by Copyscape

Phone
Hotline
0989.525.855
phản hồi

Design by bdsviet.net

CopyRight @2022 - Thuộc về bdsviet.net

Kết nối với chúng tôi face you zalo