Trang chủ / Nhà đất cho thuê / Cho thuê nhà mặt tiền

Cho thuê nhà xưởng CCN Tiến Hưng, Đồng Xoài, Bình Phước 18.936m²

Cho thuê nhà xưởng – CCN Tiến Hưng, Đồng Xoài, Bình Phước – 18.936m²
Thông tin chi tiết
Vị trí: Cụm Công Nghiệp Tiến Hưng, TP. Đồng Xoài, Bình Phước
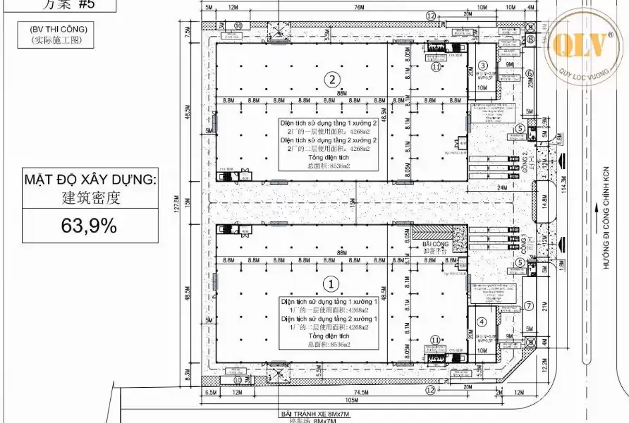
Tổng diện tích khuôn viên: 14.789m²
Tổng diện tích xây dựng: 18.936m²
Trong đó
Nhà xưởng 1: DTXD 9.236m² (1 trệt 1 lầu: 4.268m² + 4.268m²), văn phòng 700m² (3.5 tầng), có 2 thang máy, bình điện 400 KVA, bãi xe công và các công trình phụ trợ khác
Nhà xưởng 2: DTXD 9.236m² (1 trệt 1 lầu: 4.268m² + 4.268m²), văn phòng 700m² (3.5 tầng), có 2 thang máy, bình điện 400 KVA, bãi xe công và các công trình phụ trợ khác
Tiện ích & đặc điểm
Kết cấu nhà xưởng kiên cố, thiết kế 2 tầng, phù hợp đa ngành nghề
Đường nội bộ rộng rãi, xe container ra vào thuận tiện
Hệ thống hạ tầng điện – nước – PCCC đạt chuẩn
Nằm trong CCN Tiến Hưng, an ninh tốt, thuận lợi sản xuất
Liên hệ
CÔNG TY TNHH MTV QUÝ LỘC VƯỢNG
Hotline: 0931 769 444
Website: https://nhaxuongchinhchu.vn
 đồng xoài, bình phước
Giá: 1.17 tỷ - 0.062tr / m2
Diện tích: 18936 m2

Cho thuê nhà xưởng CCN Tiến Hưng, Đồng Xoài, Bình Phước 18.936m²
Cho thuê nhà xưởng CCN Tiến Hưng, Đồng Xoài, Bình Phước 18.936m²
Cho thuê nhà xưởng CCN Tiến Hưng, Đồng Xoài, Bình Phước 18.936m²
Cho thuê nhà xưởng CCN Tiến Hưng, Đồng Xoài, Bình Phước 18.936m²
Cho thuê nhà xưởng CCN Tiến Hưng, Đồng Xoài, Bình Phước 18.936m²
Cho thuê nhà xưởng CCN Tiến Hưng, Đồng Xoài, Bình Phước 18.936m²
Cho thuê nhà xưởng CCN Tiến Hưng, Đồng Xoài, Bình Phước 18.936m²
Cho thuê nhà xưởng CCN Tiến Hưng, Đồng Xoài, Bình Phước 18.936m²
Cho thuê nhà xưởng CCN Tiến Hưng, Đồng Xoài, Bình Phước 18.936m²
Cho thuê nhà xưởng CCN Tiến Hưng, Đồng Xoài, Bình Phước 18.936m²
Cho thuê nhà xưởng CCN Tiến Hưng, Đồng Xoài, Bình Phước 18.936m²
Cho thuê nhà xưởng CCN Tiến Hưng, Đồng Xoài, Bình Phước 18.936m²
Cho thuê nhà xưởng CCN Tiến Hưng, Đồng Xoài, Bình Phước 18.936m²
Cho thuê nhà xưởng CCN Tiến Hưng, Đồng Xoài, Bình Phước 18.936m²
Các thông tin khác
Mã tin:
109854
Hướng:
-
Đường rộng:
0m
Chiều ngang:
0m
Chiều dài:
0m
Pháp lý:
Sổ hồng/sổ đỏ
Số tầng:
0
Phòng ngủ:
0
Số wc:
0
Lưu ý:
Các bạn đang xem tin đăng trong mục "Nhà đất cho thuê, Cho thuê nhà mặt tiền Đồng Xoài, Bình Phước". Các tin rao vặt là do người đăng tin đăng tải toàn bộ thông tin. Chúng tôi hoàn toàn không chịu trách nhiệm về bất cứ thông tin nào liên quan tới các thông tin này. Chúng tôi luôn cố gắng để đưa các tin tức nhanh và chính xác nhất cho các bạn.
Tin rao cùng khu vực
Saotho.net

Mua bán nhà đất

KĐT Tài Tâm - Thanh Châu - Phủ Lý - Hà Nam

Bất Động Sản Việt cung cấp thông tin bất động sản, nhà đất cần bán, cần mua, thông tin các dự án mới nhất. Hỗ trợ tư vấn miễn phí bất động sản tận tâm chính xác.
Chúng tôi luôn mong muốn được hợp tác cùng phát triển với các tổ chức và cá nhân trong lĩnh vực Bất Động Sản trên toàn quốc để cùng hoạt động và tạo doanh thu.

DMCA.com Protection Status Protected by Copyscape

Phone
Hotline
0989.525.855
phản hồi

Design by bdsviet.net

CopyRight @2022 - Thuộc về bdsviet.net

Kết nối với chúng tôi face you zalo